



















































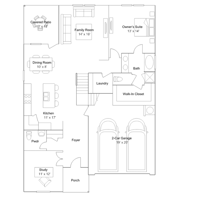
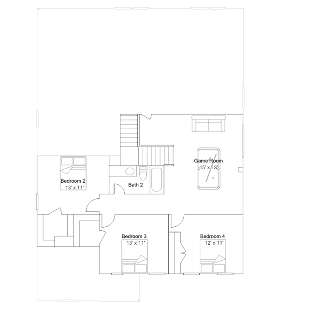
This two-story home has everything a growing family needs to live peacefully. The first floor features a convenient study by the front door and an open layout among the main living area with a large covered back patio. The owners suite is also on the first floor, while on the second floor is host to three additional bedrooms, a full bathroom and a game room.
Stay informed with Livabl updates on new community details and available inventory.