



















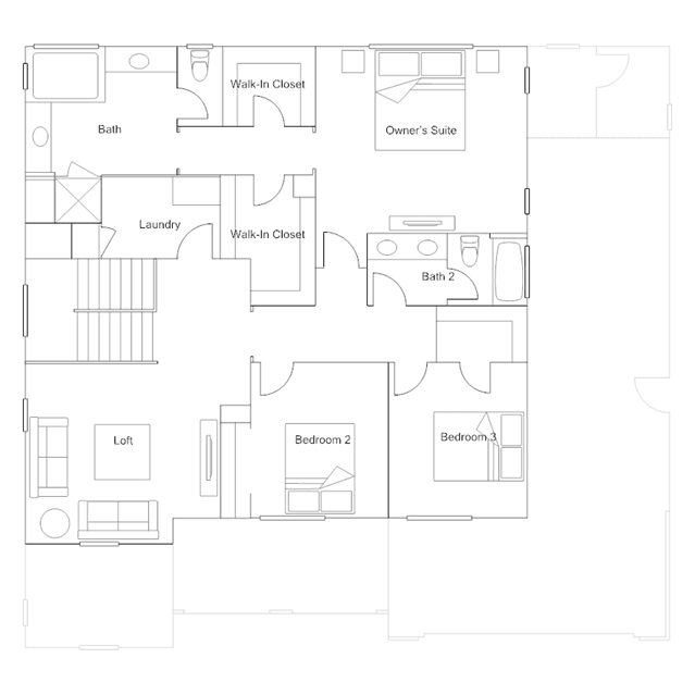
This two-story home was designed with comfortable living in mind. On the first floor, the Great Room, kitchen and dining room share a convenient and contemporary open floorplan, while a formal dining room off the foyer is perfect for entertaining. A secondary bedroom is great for overnight guests or a home office. Upstairs is a loft and three more bedrooms, including the luxe owners suite.