











































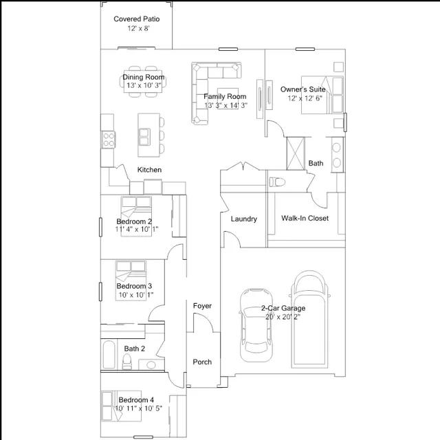
This new single-level home features a low-maintenance and modern layout. Off the foyer are three bedrooms, leading to an open-concept floorplan shared between the kitchen, living and dining areas. The lavish owners suite is tucked into a private rear corner, offering direct access to an en-suite bathroom and generous walk-in closet. A two-car garage and covered patio complete the home.