

















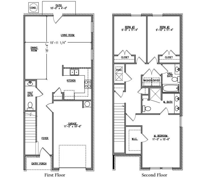
Discover The Palm A in Palmer Pointe, our new townhome community in Apalachicola, FL. This floorplan is a new 3 bedroom 2 bathroom townhome with attached garage. This contemporary townhome includes designer kitchen has a ton of countertop and cabinet space with stainless steel appliances, granite in the kitchen and bathrooms, recessed lighting luxury plank flooring in all common and living areas. The living and dining room combo is cozy yet open with excellent natural lighting. The upstairs has a large master suite, 2 charming bedrooms and 2 roomy bathrooms. *Pictures, photographs, colors, features, and sizes are for illustration purposes only and will vary from the homes as built. Incentives, prices, plans, features, options and co-broker are subject to change without notice.