














































Get additional information including price lists and floor plans.
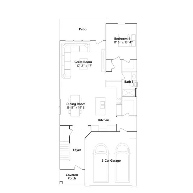
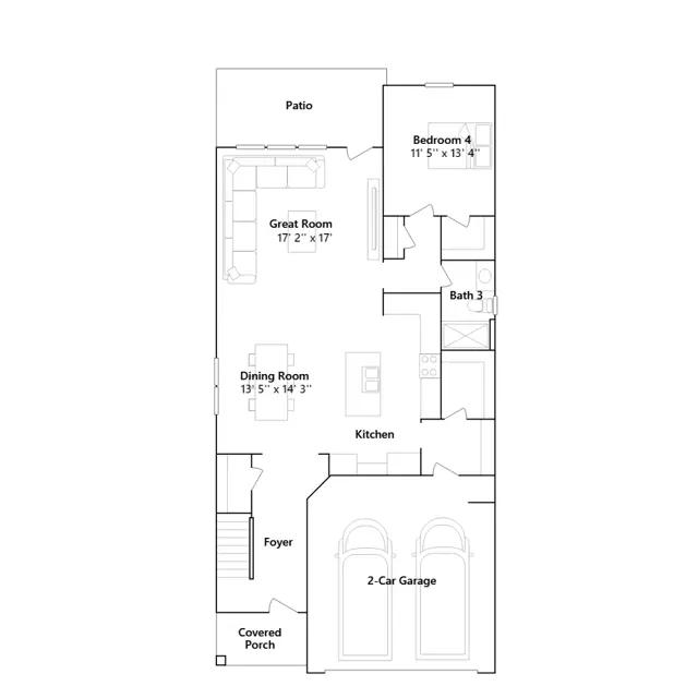
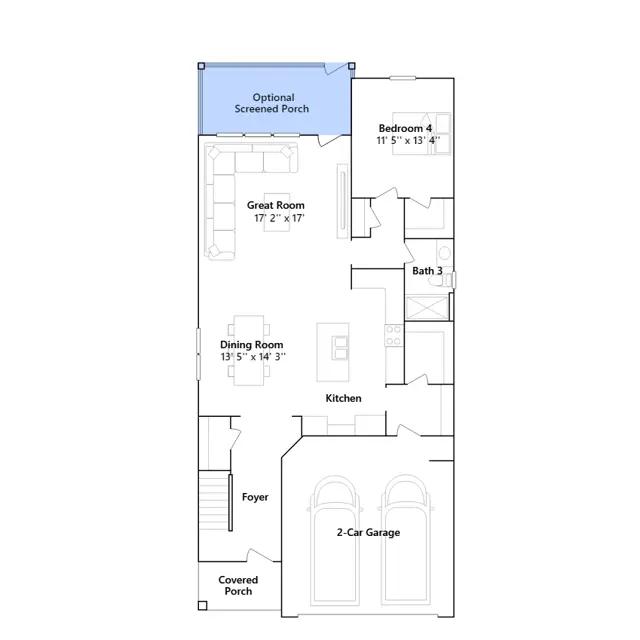
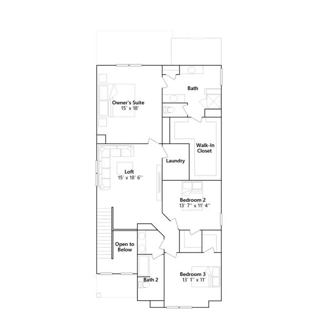
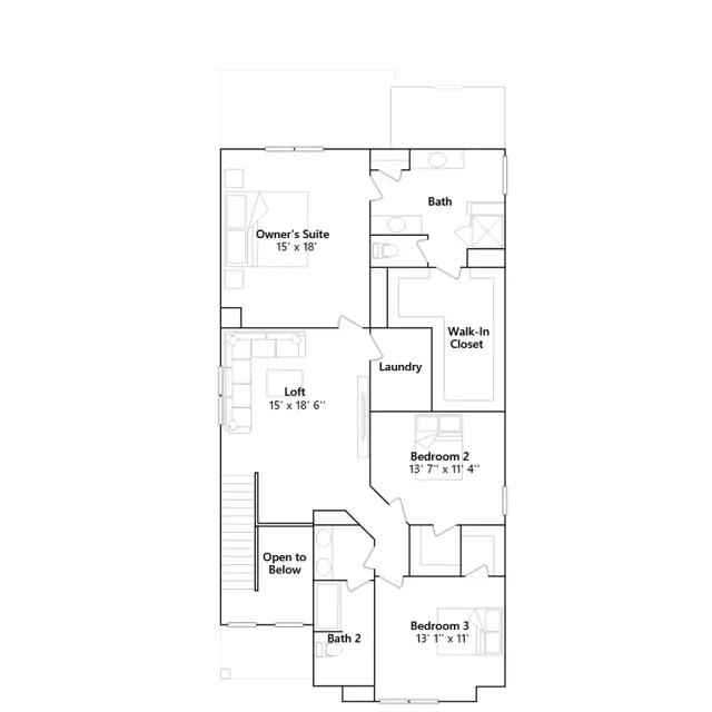
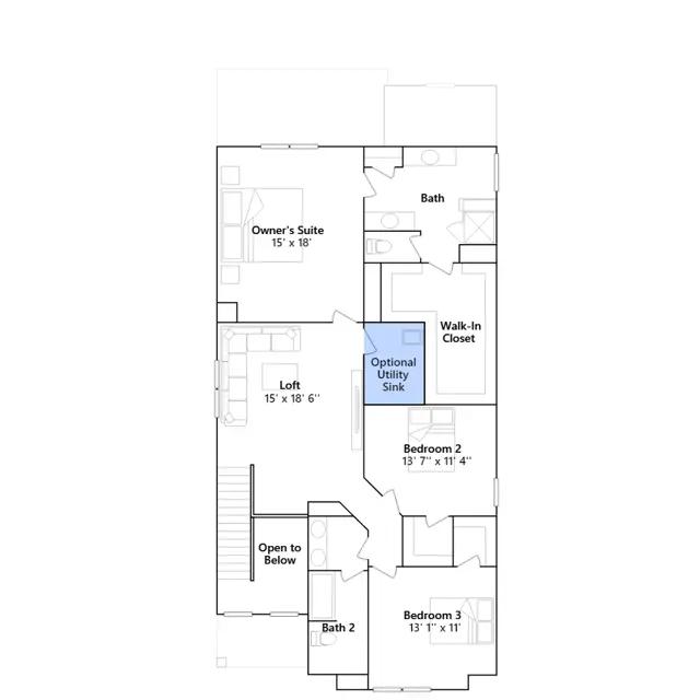
This new two-story home combines modern comfort with convenience. The double-height foyer flows to contemporary open design among the first-floor kitchen, dining area and Great Room, with direct access to the patio for seamless indoor-outdoor relaxation. Nearby is a bedroom suite to accommodate overnight guests. Upstairs caters to intimate spaces with a spacious loft area, two secondary bedrooms and the luxurious owners suite with an oversized walk-in closet.
Stay informed with Livabl updates on new community details and available inventory.