








Images coming soon
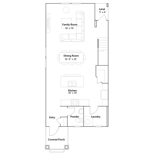
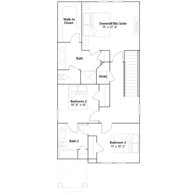
This new two-story home is ready for modern lifestyles. The first floor comprises a spacious and flexible open-concept layout shared between the kitchen, living and dining areas, with a nearby lanai offering convenient outdoor entertainment. All three bedrooms are located upstairs, including the luxurious owners suite with a spa-inspired bathroom and walk-in closet.
Stay informed with Livabl updates on new community details and available inventory.