



















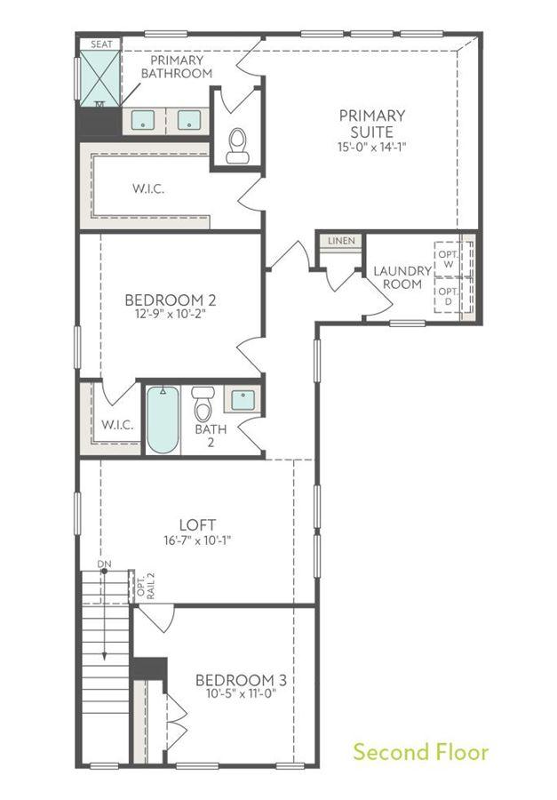
The Anise features an open floor plan creating a natural flow between the main living areas on the first floor including the great room, kitchen, and dining. Wander upstairs for the bedrooms nestled around a loft area for easy gathering of guests. What you will love about this plan: Covered Outdoor Living HomeSmart Features 2 Bay Garage Spacious Primary Suite Optional Luxury Kitchen Two-Stories
Stay informed with Livabl updates on new community details and available inventory.