
































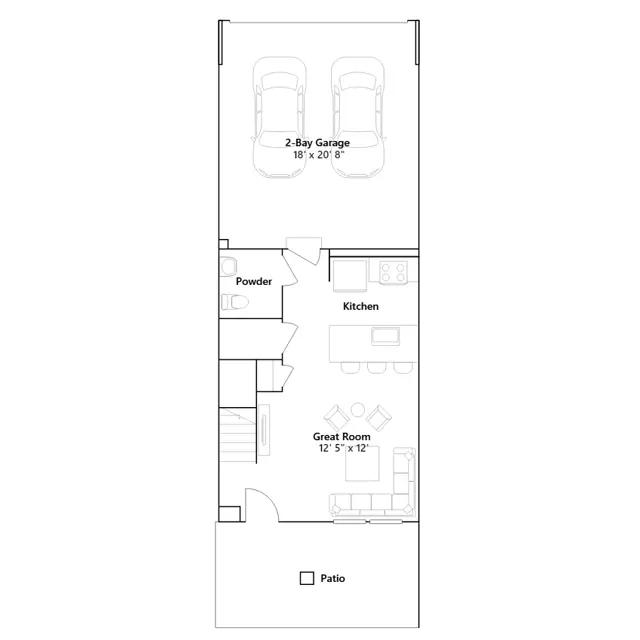
This two-story home was designed for modern living, with a large front patio that adds outdoor living space. The first floor hosts a kitchen with island, convenient powder room and a Great Room in an open design. Upstairs is a central loft surrounded by two bedrooms, including the spacious owner's suite.