







































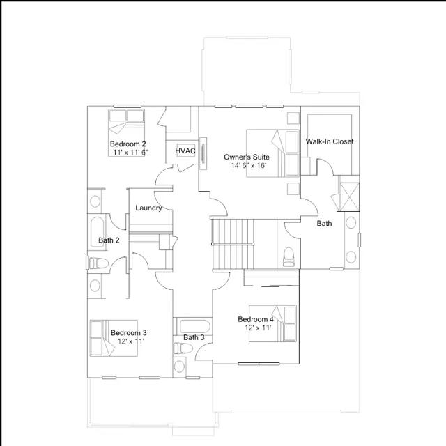
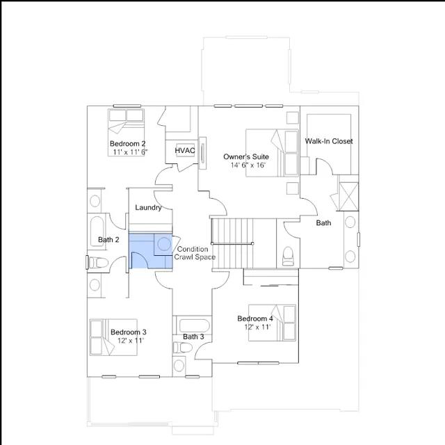
The first level of this two-story home is host to the Great Room, kitchen and nook, arranged in a convenient and contemporary open floorplan, while a practical study is situated off the foyer, ideal for those who need a home office. All four bedrooms can be found on the second level.