





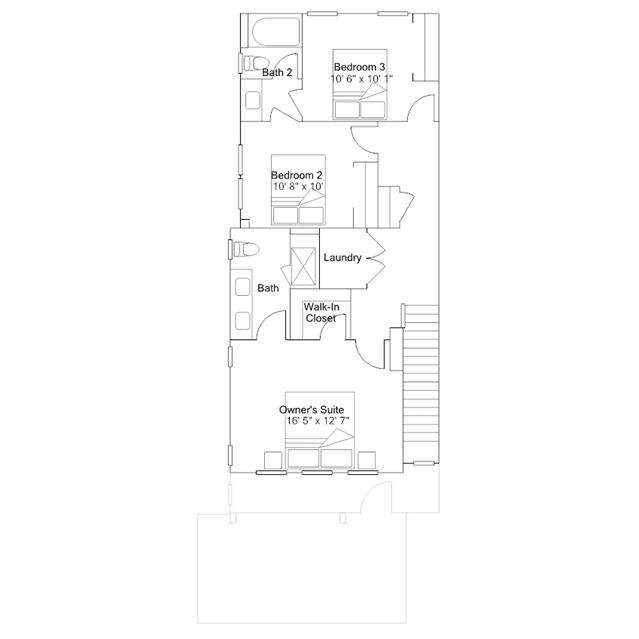
This two-story townhome offers a low maintenance and smart design. The first level is dedicated to shared living with an open layout among the Great Room and kitchen with a large center island that doubles as a breakfast bar. At the second floor is a loft are all three bedrooms, including the lavish owners suite. A two-bay garage set at the rear of the home adds great curb appeal.