





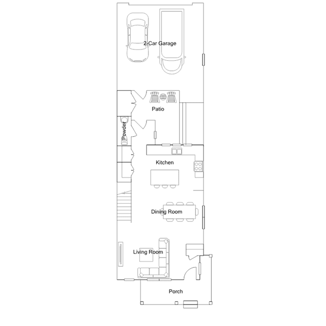
The first floor of this two-story home opens into a shared living space between the living room, dining room and kitchen for easy entertaining. Upstairs are two secondary bedrooms, ideal for residents and overnight guests and a versatile flex space that can easily serve as an office or TV viewing area, depending on the household's needs. An owner's suite is at the front of the second floor and enjoys an en-suite bathroom, double walk-in closets and a private balcony.