











































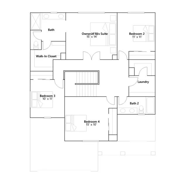
The Great Room, kitchen and dining room are situated among a convenient and contemporary open floorplan, offering access to the patio through sliding glass doors. A versatile den and secondary bedroom are located off the entry hallway. Four more bedrooms are found upstairs, including the luxe owners suite which is comprised of a spacious bedroom, spa-inspired bathroom and walk-in closet.