











































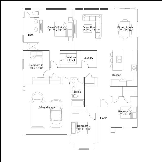
This new single-level home boasts a convenient layout with an open-concept floorplan that combines the kitchen with the living and dining areas. Two secondary bedrooms can be found near the entry. Two additional bedrooms are tucked away to the side of the home, including the luxe owners suite, complete with an en-suite bathroom and walk-in closet.
Stay informed with Livabl updates on new community details and available inventory.