

































































Get additional information including price lists and floor plans.
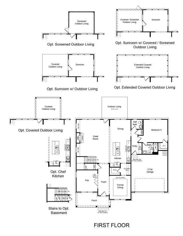
The Kenwood is a thoughtfully crafted five-bedroom home designed with flexibility, space, and comfort in mind. From the moment you step inside, youre welcomed by a spacious flex room and a dedicated formal dining area that easily adapts to your lifestyle. The heart of the home is the open kitchen, offering abundant cabinet space, a large center island, and a natural flow into the gathering area, making everyday living and entertaining feel effortless. A private bedroom with its own full bathroom completes the main floor, providing comfort for guests or the perfect setup for multigenerational living. Upstairs, the home continues to impress with four additional bedrooms, a versatile loft for relaxing or play, and a spacious primary suite featuring an oversized walk-in closet that offers both luxury and practicality.
Stay informed with Livabl updates on new community details and available inventory.