










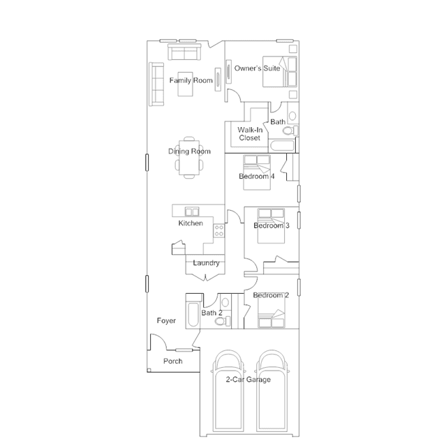
This single-story home has a thoughtful layout that is ideal for families. There is an owners suite with a full bathroom and walk-in closet at the back while three additional bedrooms share a bathroom in the hall. The open floorplan is connected to the foyer, offering seamless transition between the family room, kitchen and dining room.