









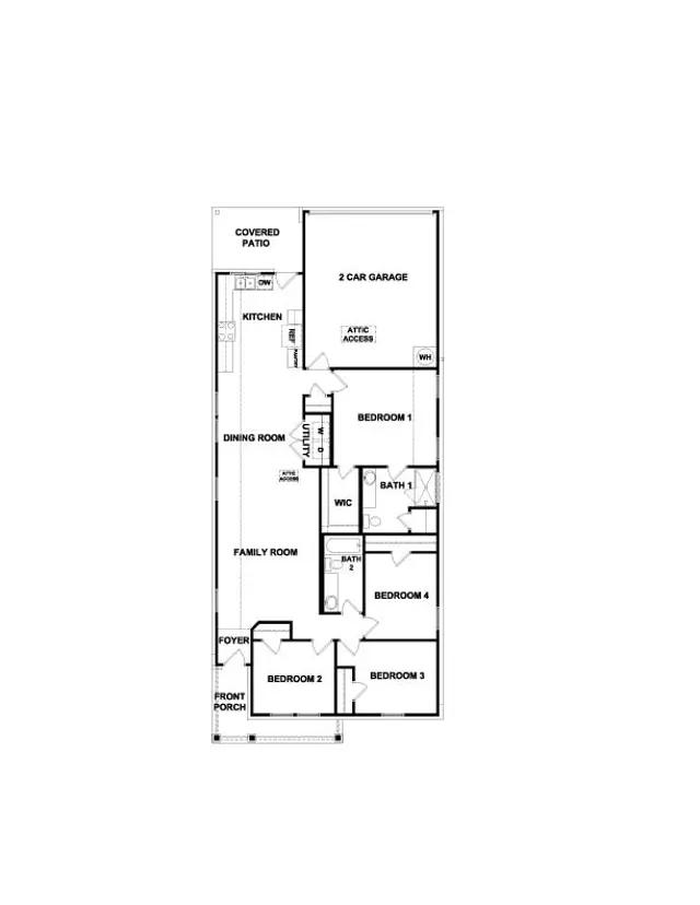
The Fenwick is one of our one-story floorplans in our Valverde community in Bastrop, TX. Inside this 4 bedroom, 2 bathroom home you'll find 1,427 square feet of comfortable living space. Entering the home from the front porch, you'll step into the foyer that opens up to the spacious living room. The three secondary bedrooms and full bathroom with a shower and bathtub are at the front of the home. Making your way into the living room, the vast open-concept creates a grand living area. The gorgeous kitchen sits at the back of the home and boasts white cabinets, and stainless steel appliances. The private main bedroom is located towards the back of the home and includes an en-suite with a walk-in shower, a separate toilet room, and a walk-in closet This home comes included with a professionally designed landscape package and a full irrigation system as...
Stay informed with Livabl updates on new community details and available inventory.