

















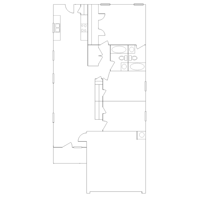
This single-story home is designed for low-maintenance living with generous room to grow. Upon entry is an open-concept family room that flows to the connecting dining room and kitchen in a cohesive layout, ideal for modern living and entertainment. On the opposite side is the private owners suite with an adjoining full-sized bathroom and two secondary bedrooms for restful retreats. Completing the home is a two-car garage.