






















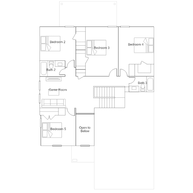
This two-story home provides a spacious layout with plenty of both shared and private spaces. On the first floor is a study off the foyer featuring stylish double doors, just before the open kitchen with center island, breakfast room, family room and back patio area. The owners suite is also on the first level and features a spa-like bathroom and walk-in closet. Upstairs is a versatile game room and four secondary bedrooms waiting to be filled.