























Get additional information including price lists and floor plans.
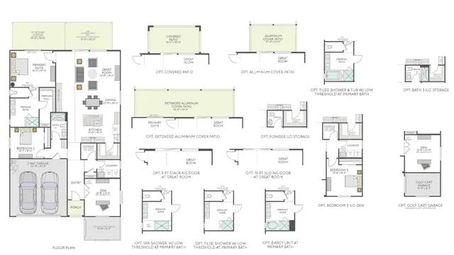
Enjoy the breath of fresh air offered by Plan 1 at Lina. This large, single-story floorplan combines a spacious home design with a variety of home options to fit your needs. Find options for the covered patio, optional stackable doors, optional baths, and more. Its all yours. Highlights: Den Optional Golf Cart Garage Optional Bed 3 and Bath 3 Interested in learning more or scheduling a tour of one of our homes? Give our New Home Specialist team a call at(951) 397-0521.
Stay informed with Livabl updates on new community details and available inventory.