




































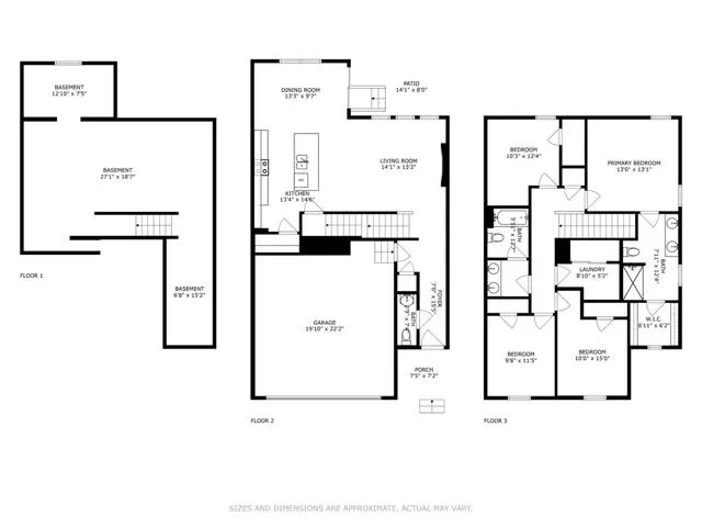
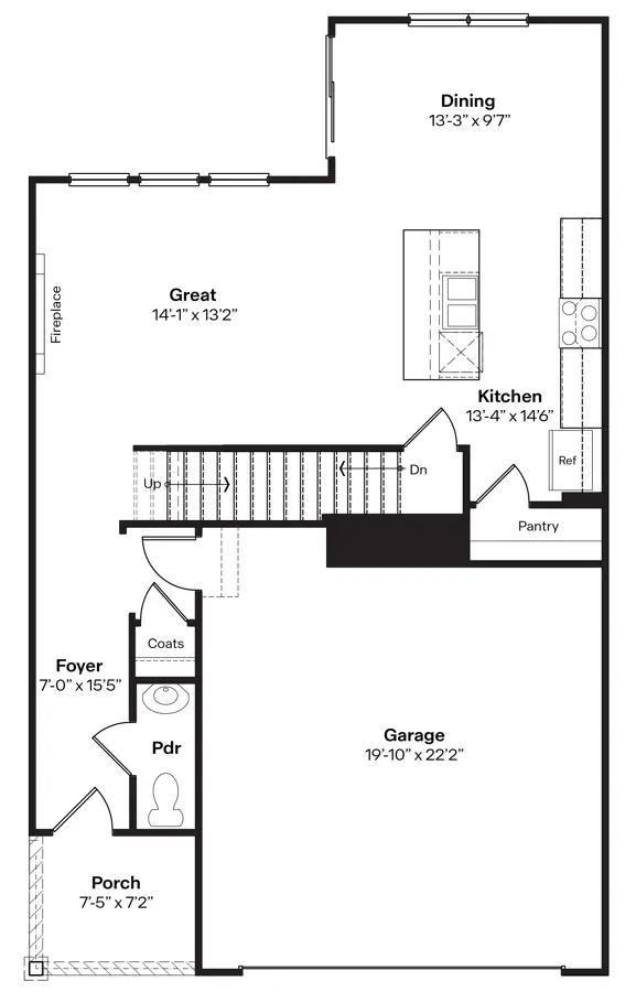
The Emerson is one of our bi-attached twin home floor plans that features a 2-story design, 4 bedrooms, 2.5 bathrooms, a 2 car garage and over in the Majestic Pointe Twin Homes community in Bennington, NE. Featuring 4 bedrooms, 2.5 bathrooms, 2 car garage and 1,767 sq. ft. of living space. As you enter the home from the covered porch and walk down the foyer you will pass the guest bathroom, garage door entrance and stairs leading to the second level. Continuing down the foyer you are welcomed into the heart of the home. The living room is spacious allowing for a variety of set-ups and boasts a sleek electric fireplace that is both functional and stylish. Additionally, three large windows overlooking the backyard allow for plenty of natural light to shine in. Flowing from the living room is the kitchen, a designated dining space and sliding glass doors that ope...
Stay informed with Livabl updates on new community details and available inventory.