
















































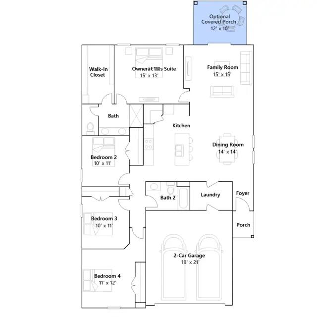
In this new single-story home, the foyer extends to an open living space in the kitchen, dining room and a family room with sliding doors leading to the patio. There are four bedrooms in total to provide family members with their own restful haven. The owners suite is comprised of a bedroom, attached bathroom and walk-in closet. Rounding out the home is a convenient two-car garage for versatile storage space.
Stay informed with Livabl updates on new community details and available inventory.