








































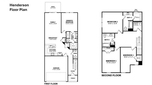
The Henderson floor plan offers the perfect balance of open living and private comfort across two thoughtfully designed levels. The first floor features an inviting layout with a spacious family room, bright breakfast area, and modern kitchen complete with a large island and walk-in pantryideal for everyday living or entertaining. The owners suite is conveniently located on the main level, providing a private retreat with a luxurious bath and walk-in closet. Upstairs, three additional bedrooms offer plenty of space for family or guests, complemented by two full baths and generous closet storage throughout. With a charming front porch, two-car garage, and inviting back patio, the Henderson combines style, practicality, and comfort to create a home that truly fits your lifestyle.
Stay informed with Livabl updates on new community details and available inventory.