




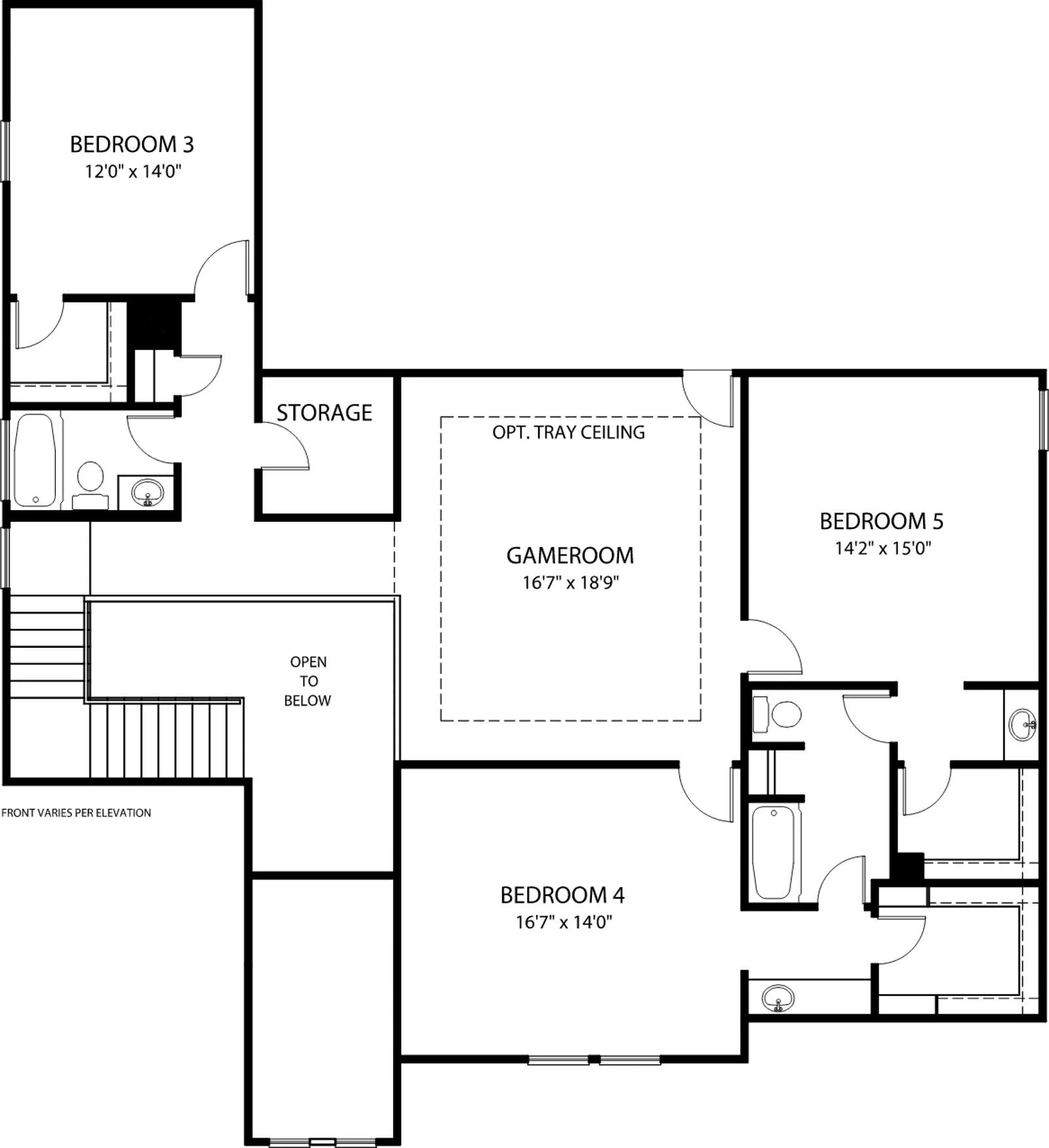
The Bowman has an open floor plan kitchen, dining, and family room. The luxury kitchen boasts abundant countertop space and a deep walk-in pantry. The great room overlooks a spacious covered patio, perfect for outdoor living and entertaining. Working from home? The Bowman includes a private home office. You?ll also find a spacious flex room, which can be customized to your family?s lifestyle ? whether that?s a home gym, media room, or craft room. The Bowman is a five bedroom floor plan, with two first-floor bedrooms and three upstairs. The first-floor primary suite features a large shower, freestanding tub, spacious walk-in-closet, and double vanities. On the first floor, you?ll also find a three-car garage with storage space, spacious laundry room, family foyer, half-bath, and grand two-story foyer. Upstairs, you?ll find a customizable game room and large storag...
Stay informed with Livabl updates on new community details and available inventory.