






















































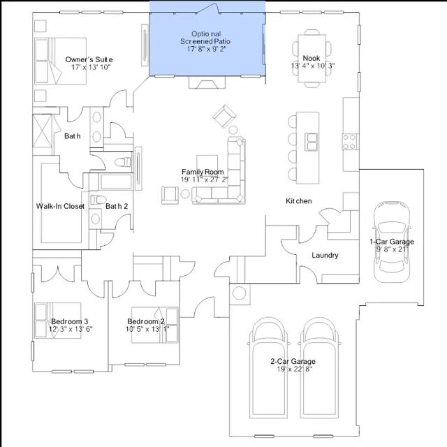
This new single-story home is a modern take on a classic design. An open-plan layout connects an expansive Great Room, a well-equipped kitchen and nook together to prioritize ease of living, while nearby is a large covered patio. On the opposite side of the home are two secondary bedrooms and a tranquil owners suite which comes with an attached bathroom and an oversized walk-in closet.
Stay informed with Livabl updates on new community details and available inventory.