














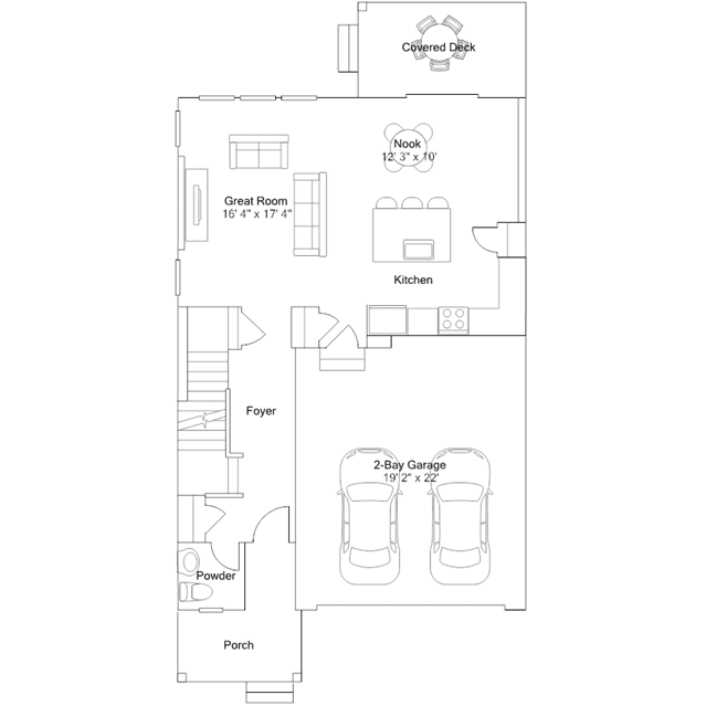
A spacious open floorplan is found on the first level of this two-story home, allowing for effortless flow between the Great Room, kitchen and dining room. Sliding glass doors lead to a covered deck. All three bedrooms occupy the second level, including the luxe owners suite with a restful bedroom, spa-inspired bathroom and walk-in closet.