





































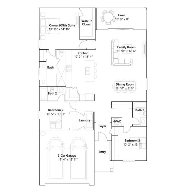
This single-story home features a split floorplan that divides the comfortable bedrooms with an open layout among the dining room, kitchen and family room. An attached lanai offers indoor-outdoor hosting opportunities, while the nearby owners suite showcase an oversized walk-in closet and a spa-style bathroom. Rounding out the home is a convenient two-car garage.