





























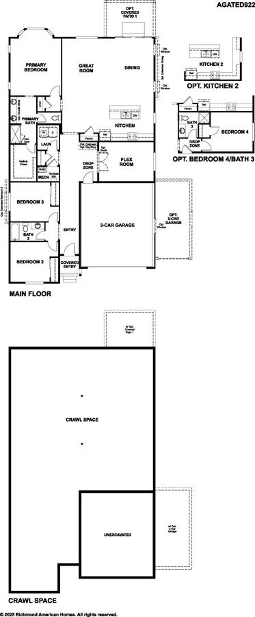
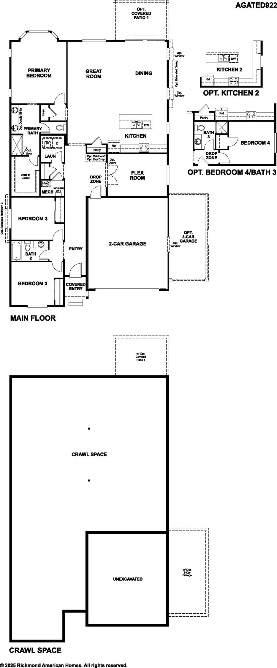
This thoughtfully designed home offers an open layout showcasing a well-appointed kitchen with a center island, roomy pantry and dining area, and a spacious great room. An adjacent primary suite includes an expansive walk-in closet and a private bath with double sinks and a linen closet.
Stay informed with Livabl updates on new community details and available inventory.