
























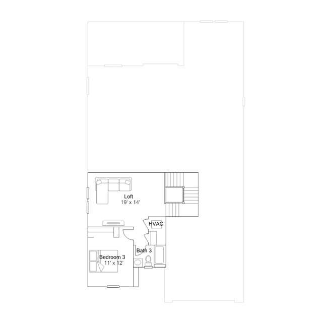
The collections only two-story plan centers on convenience. On the first floor, a flex space offers a place to explore hobbies, while the open design of the family room and dining room provide a contemporary style that leads to an expansive patio. The nearby owners suite is a tranquil escape, and throughout the home are two secondary bedrooms and an upstairs loft.