






























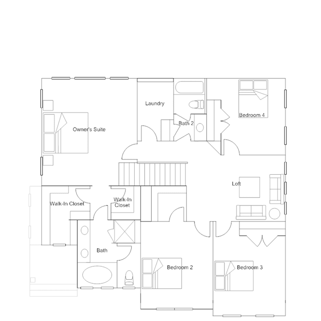
This spacious two-story home features a bright study near the foyer, which leads into the open floorplan shared between the family room, kitchen and dining room. Sliding glass doors open to the outdoor space for seamless indoor-outdoor living and entertaining. Upstairs is a versatile loft surrounded by four bedrooms, including the owners suite with a spa-inspired bathroom and dual walk-in closets.