























































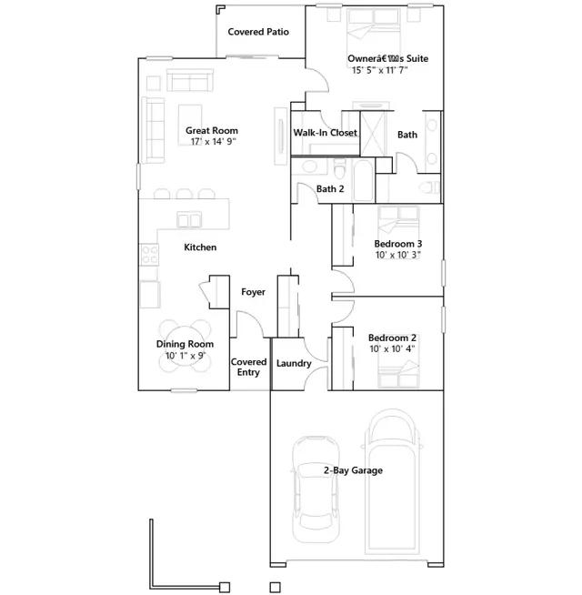
This single-level home is host to an inviting and modern layout, featuring an open-concept floorplan consisting of the kitchen, dining room and Great Room, with a covered patio offering convenient outdoor access. Three bedrooms are tucked away to the side of the home, with the owners suite nestled into a private corner at the back of the home, complete with a walk-in closet and en-suite bathroom.
Stay informed with Livabl updates on new community details and available inventory.