





























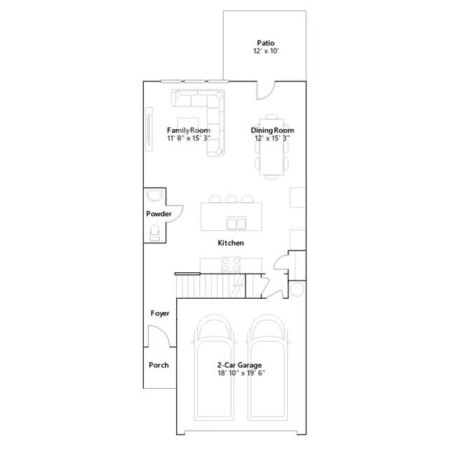
This new home provides modern comfort and convenience throughout its two levels. Showcasing an open layout shared by the first-floor kitchen, family room and dining room, a rear patio extends it further to the outdoors. Upstairs are two secondary bedrooms and the spacious owners suite, featuring a private bathroom and walk-in closet. Completing the home is a two-car garage for versatile storage space.
Stay informed with Livabl updates on new community details and available inventory.