





Stay informed with Livabl updates on new community details and available inventory.

Discover The Enclave in Carrington, a limited collection of Georgian Colonial-inspired homes in northwest Calgary
Now in its fifth phase, Mattamy is introducing a new collection of homes backing onto an environmental reserve area.

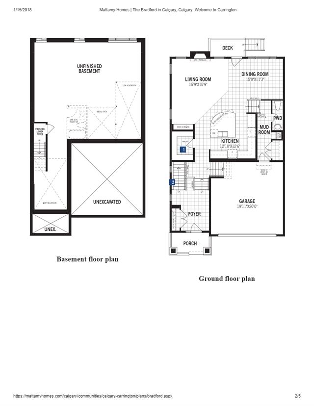
Explore the open-concept layout and chef’s kitchen in the Bradford model home at Carrington
The Bradford boasts a modern, Prairie-style elevation characterized by a simple, yet elegant aesthetic with clean lines, vinyl siding and large windows.