










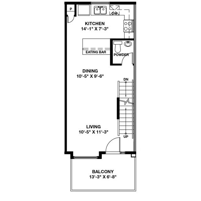
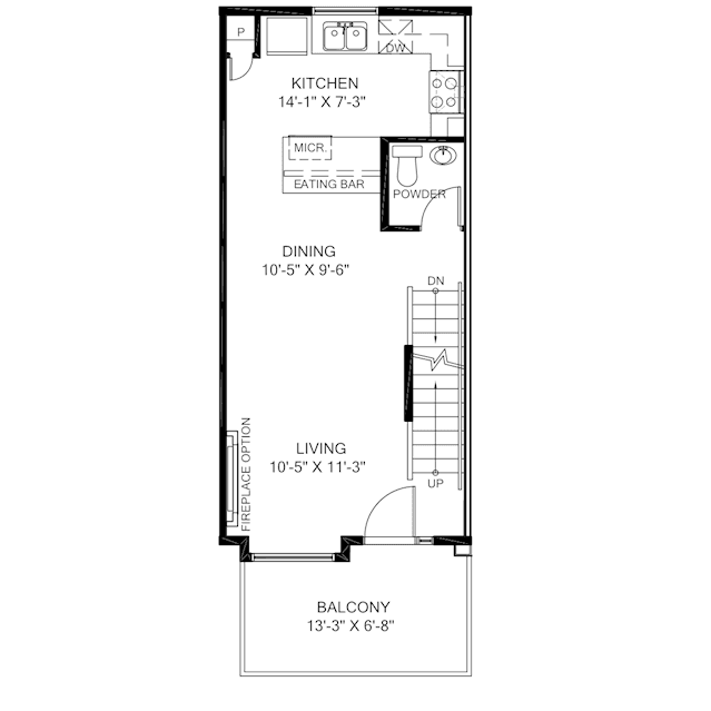
Discover the Gillespie floorplan at Brightside, where modern living meets suburban charm. Spread across 1,095 sq. ft., this two-bedroom row townhome, each with it's own ensuite, is designed to bring comfort and style to your life. Experience the convenience of a one-car garage along with a flex room that offers ample storage space, freeing up room for what really matters. Step into an open-concept dining and living area, the perfect space for entertaining guests or relaxing with family. Let the sunshine in with a private balcony, the ideal place for your morning coffee or an evening barbecue. More than just a home, the Gillespie at Brightside is a way of life.
Stay informed with Livabl updates on new community details and available inventory.