






















































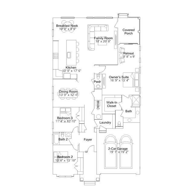
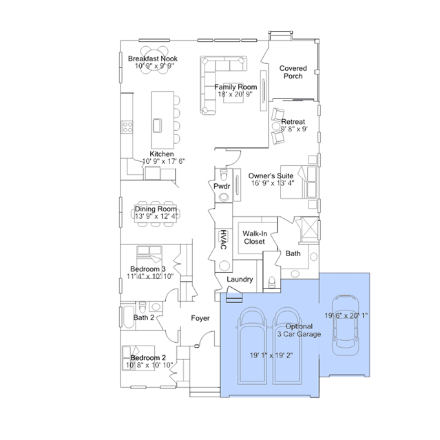
This expansive single-story home features a formal dining room tucked to the side of the foyer, followed by a generous open-concept layout shared among the kitchen, breakfast area and family room. Close by is a covered porch for outdoor moments. Throughout the home are two secondary bedrooms and the luxurious owners suite with a versatile retreat space and adjoining full-sized bathroom. An optional second floor includes a bonus room with endless possibilities, a fourth bedroom and extra bathroom.
Stay informed with Livabl updates on new community details and available inventory.