



















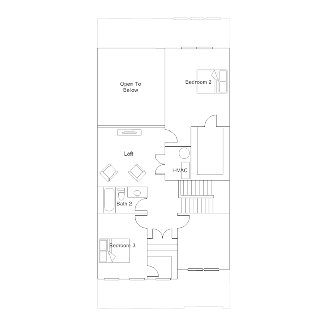
This two-story home has a low maintenance layout with a first-floor owners suite, along with a flex space, open kitchen and family room with tall ceilings. Upstairs a loft is surrounded by two bedrooms and an unfinished storage area for versatile needs. Ideal for outdoor living, there is a cozy front porch and a back patio.
Stay informed with Livabl updates on new community details and available inventory.