























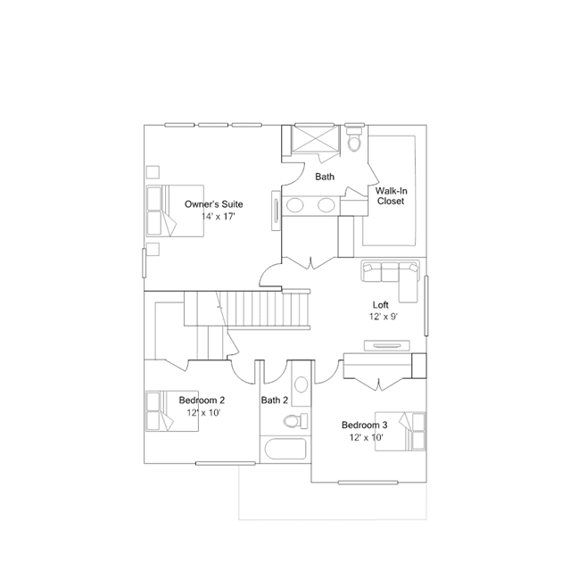
This new two-story home was designed with busy families in mind. The first floor features a family room for shared moments, a breakfast room for memorable meals, a kitchen for inspired cooking and a patio for outdoor enjoyment. Upstairs are three bedrooms including the luxe owners suite for restful nights and a loft that adds shared living space.