



















































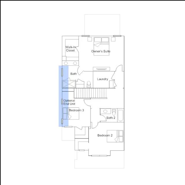
This new family-friendly two-story townhome offers an unfinished basement for added flexibility. The first floor features an open-plan layout that seamlessly connects the Great Room, dining room and multi-functional kitchen, while a patio is perfect for sunrise coffee and sunset suppers. The second floor hosts two secondary bedrooms and the owners suite, which all have walk-in closets.