

























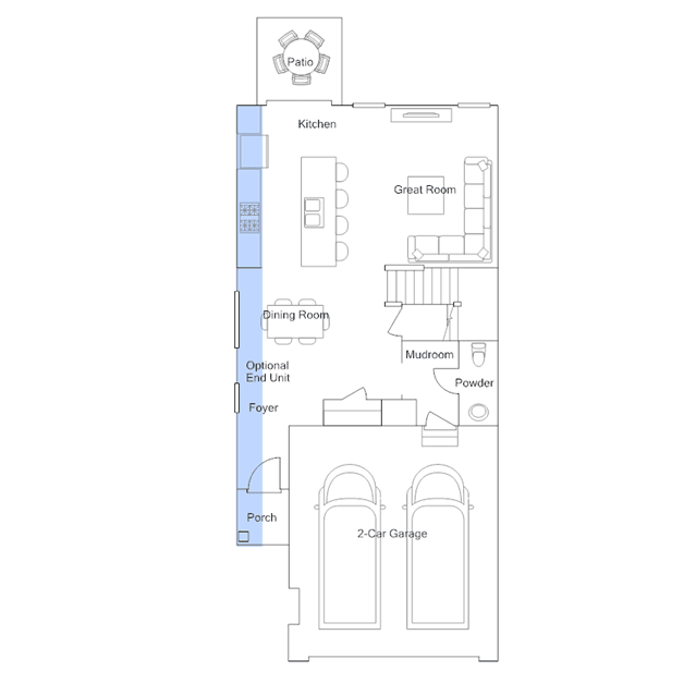
This elegant new two-story townhome offers a versatile lower level. The first floor features an open design among a family room for get-togethers, a dining room for meals of every occasion and a kitchen for inspired cooking. Upstairs, three bedrooms including the owners suite provide personal retreats for family members.