





















































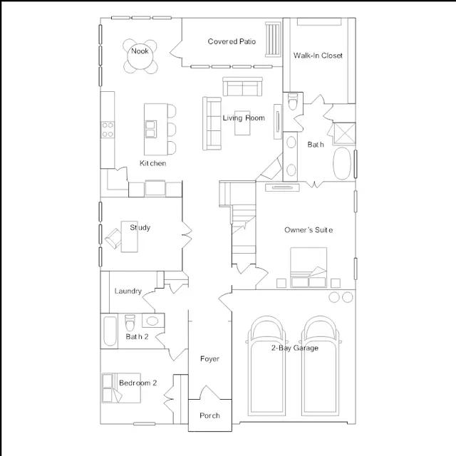
This two-story home has a unique layout that is perfect for families who need space. There are two bedrooms on the first floor, including the owners suite in the back of the home and a smaller suite off the foyer. The open living space is beside the owners suite and has a back patio. Upstairs are two bedrooms and a versatile bonus room loft.
Stay informed with Livabl updates on new community details and available inventory.