
































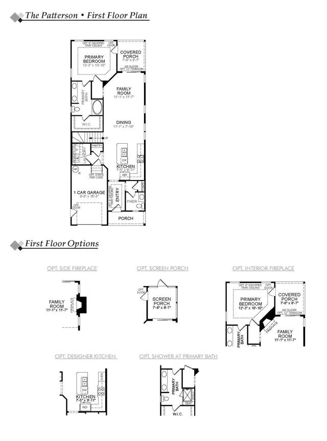
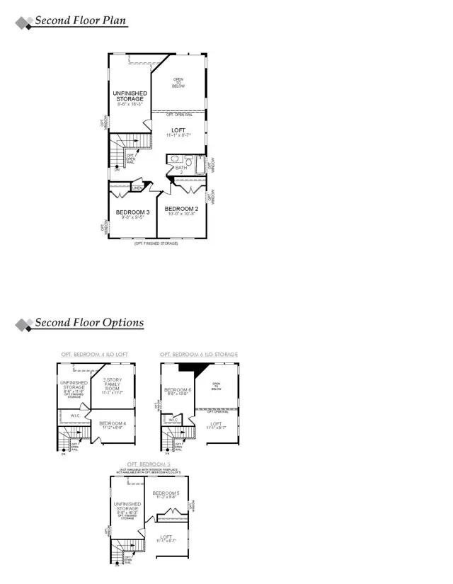
The Patterson is a two story three bedroom two and a half bath home with a first floor primary bedroom two story family room kitchen with island and pantry a first floor laundry room and a covered rear porch. This home also features two bedrooms and a full bath on the second floor along with a loft area and an oversized unfinished storage area.
Stay informed with Livabl updates on new community details and available inventory.