















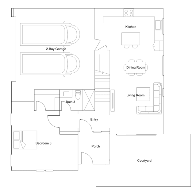
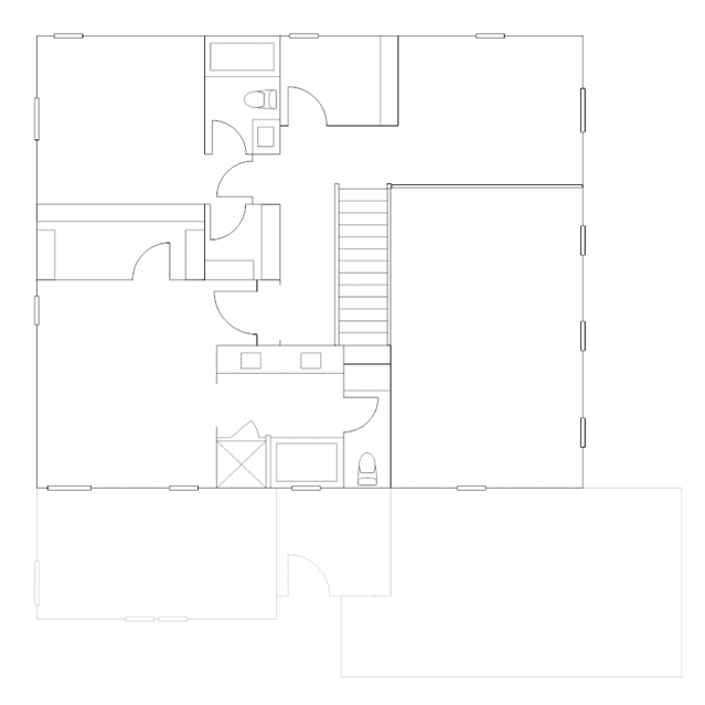
This new two-story home design combines style and comfort. The first floor showcases an open-plan layout among a living room for shared moments, a dining room for memorable meals and a kitchen for adventurous cooks. A secluded secondary bedroom offers added privacy, and a courtyard enhances outdoor enjoyment. The second floor features a versatile loft, another secondary bedroom and a luxe owners suite.