

















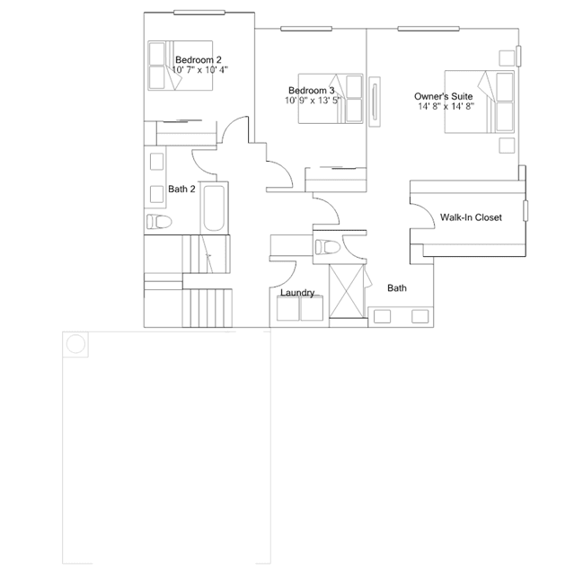
A generous open floorplan shared between the kitchen, dining room and Great Room occupies the first level of this two-story townhome, offering access to the outdoor space through sliding glass doors. A secondary bedroom is ideal for overnight guests or a home office. Three more bedrooms can be found upstairs, including the luxe owners suite which features a private bathroom and walk-in closet.