





























































Images coming soon
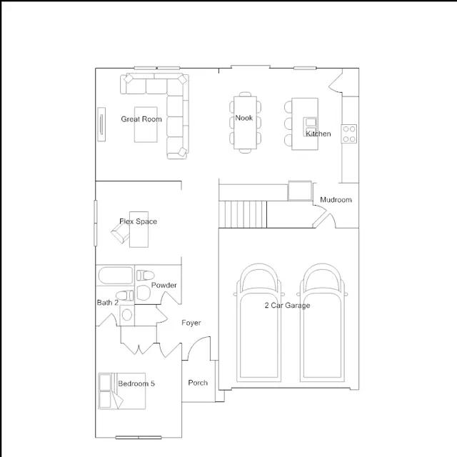
The largest floorplan available in this collection, Kingston offers an open layout among the Great Room, nook and kitchen on the first floor, plus a flex space and a fifth bedroom perfect for overnight guests. Upstairs are four more bedrooms, including the owners suite, and a loft for additional living space. Completing the home is a versatile two-car garage.
Stay informed with Livabl updates on new community details and available inventory.