


































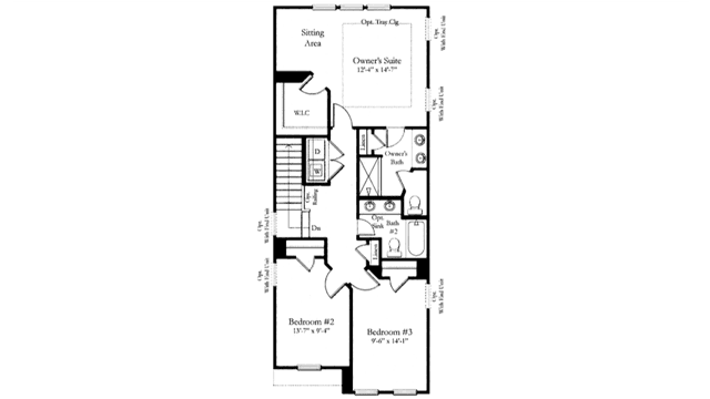
Spacious open concept kitchen with a 9 foot centered island sits adjacent to the airy family room and breakfast room.The second level living includes three bedrooms, two full bathrooms and the laundry room.The roomy primary suite boasts an expansive closet and an en suite bathroom with a dual vanity.Home includes 1 car garage with 1 car parking pad.