































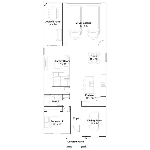
This spacious two-story home features a versatile dining room off the foyer, followed by an open layout among the kitchen, nook and family room. Ideal for outdoor living is a covered porch and back patio. Throughout the home is a lavish owners suite with a resort-style bathroom and four secondary bedrooms.
Stay informed with Livabl updates on new community details and available inventory.