






































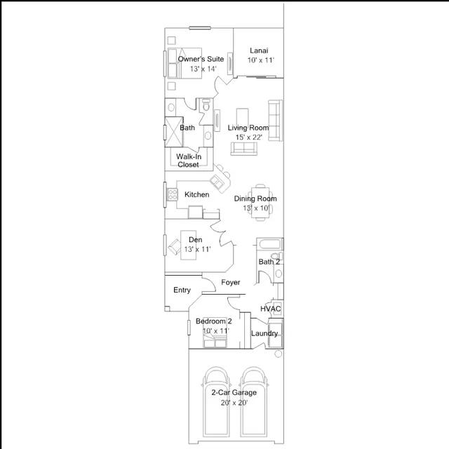
This attached single-story home delivers a cohesive design fit for modern living. Socialize on the stylish lanai or hideaway in the den, flexible as a study or media room. A front bedroom and bathroom create privacy for the owners suite with walk-in closet, which enjoys a back corner location.