

















































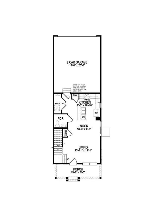
The Augusta is a two-story floor plan offered in the Paired Homes at Settlers Crossing, community in Commerce City, Colorado. This1,503 sq. ft. home features 3 bedrooms, 2.5 bathrooms, and a 2-car garage. Aiming to impress the Augusta floor plan welcomes you in from the front covered porch to the open concept living area. As you enter into the heart of the home you will see the stunning kitchen that features premium cabinetry, stainless-steel appliances, and an expansive eat-in island that flows seamlessly into both the living room and dining area. The spacious living room is perfect for relaxing or entertaining and provides ample space for any set-up. A powder room is tucked away but still convenient for guests to use. The large primary bedroom is located upstairs and is complemented with a spacious walk-in closet and an en-suite bathroom that features a du...