



























































































































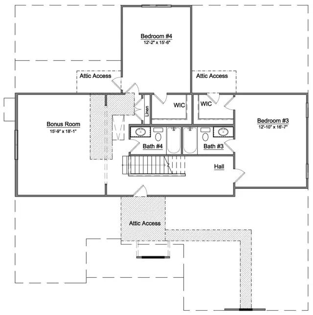
Step into the Harpera masterfully designed floorplan that that effortlessly caters to both sophisticated empty nesters and dynamic families in growth. Whether you're right-sizing or just starting to grow, this flexible floor plan effortlessly adapts to your lifestyle. The main level features a refined primary suite with a spacious walk-in closet, along with a secondary bedroom ideal for visiting guests or family. A front flex room offers endless possibilitiesuse it as a study, a cozy sitting area, or a formal dining space for special occasions. The heart of the home is the light-filled kitchen and great room, perfect for both relaxed mornings and lively gatherings. Upstairs, a secluded third bedroom and an expansive bonus room offer additional privacy and multipurpose spaceideal for a media lounge, creative studio, or game room. With its thoughtful layout and...
Stay informed with Livabl updates on new community details and available inventory.