




































Get additional information including price lists and floor plans.
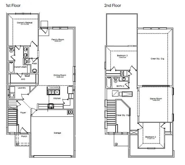
The Birch is a thoughtfully designed three-bedroom, two-and-a-half-bathroom home with soaring ceilings that create an open and airy feel throughout the main living spaces. The spacious owners retreat provides a private escape, with the option to upgrade to a luxury bath for added relaxation. Upstairs, a versatile gameroom creates the ideal space for entertainment, work or play. Extend your living space outdoors with the optional covered patio and enjoy the outdoors year-round. Designed for modern living, the Birch is a home that fits your lifestyle.
Stay informed with Livabl updates on new community details and available inventory.