





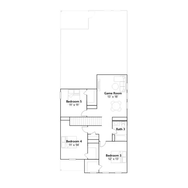
This new two-story home is host to an inviting open-concept layout on the first floor, featuring access to a covered patio for optimal entertaining and multitasking. Two bedrooms are tucked away to the side of the home, including the luxe owner’s suite with a full bathroom and walk-in closet. A versatile game room shares the second floor with three additional bedrooms. Source: Lennar
Stay informed with Livabl updates on new community details and available inventory.